一棟ビルの一部の部屋を弊社にてリノベーションのプランニングをさせて頂きました♪
築年数 不明
面積 68.00㎡(詳細不明)
施工期間 75日
施工費 1,400万円(プランニング費用含む)
施工内容 ・解体(フルスケルトン)・2重床施工・天井造作・壁全て造作・フローリング新規・玄関、廊下、トイレ、洗面室セラミックタイル新規・共用部給水システム交換・防火設備移設・天井カセットエアコン移設・建具新規・壁紙新規・仏間新規・各種収納棚新規・ニッチ造作・ダウンライト新規・オーダー家具新規、オリジナルカウンター造作・システムキッチン新規・浴室新規・トイレ新規・洗面台新規・給湯器(追炊き新規)・床暖房新規・防水パン新規・給水管、給湯管新規、排水管新規・コンセント、スイッチ類新規・エアコン先行配管新規etc・・・
リノベーションの解説をしていきます♪
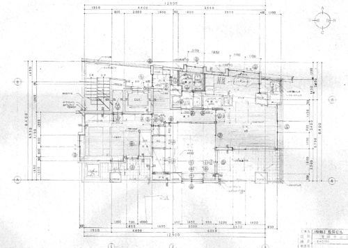
リノベーション前図面

元々2LDKでキッチンも奥まっていてイマイチ使いにくそうな間取りでした。
浴室も在来工法のタイルの浴室なので寒いとのことでした。
・お客様のご要望で収納を大きく、リビングを広くという事でした。
・大型のWICを作り収納力を大幅に増やしました。
・仏間とコレクションを飾るための飾り棚を新規で作成しました。
・カセットエアコンの移設がかなり大変でした。
・床、建具全て鏡面仕様です。
・廊下を狭くしてトイレの位置を変更してあります。
・対面型キッチンにしてあります。
リノベーション後玄関廊下
・床をセラミックタイルにして玄関廊下を明るくしております。
・玄関収納はW1600の下駄箱です。鏡面仕上げなので玄関周りが非常に明るいです。
リノベーション後トイレ
・トイレの床も汚れに強いセラミックタイルです。
・明るく清潔感のあるトイレに仕上がりました。
リノベーション後浴室
・浴室は施工の関係上1116サイズとなっております。
・全面鏡面壁になっております。
・追炊き、浴室乾燥完備です。
・手すりもついてバリアフリーに対応しています。
リノベーション後棚
・背面にモザイクタイル仕様して高級感を出しています。
・床暖房、、エアコン、インターホンのスイッチを集中させています。
・上部に飾り棚を設置しています。
リノベーション後コレクション棚
・背面のモザイクタイルが良い雰囲気を出しています。
リノベーション後仏間
・周りの雰囲気に同調するように仕上げています。
リノベーション後オーダー家具
・鏡面仕上げでかなりの収納力があります。
リノベーション後ダイニングルーム
・ダウンライトを2個付けにして光量を増やしています。
・鏡面フローリングによって光が反射して通常よりもかなり明るいです。
・サイドスリットの鏡面リビングドアはダーク系にしてアクセントを入れています。
リノベーション後キッチン
・キッチンの向きを変えて家事動線を良くしています。
・カウンターは造作です。
・シンクは天板一体型です。
・食洗、ビルトイン浄水器、ガラストップコンロです。
リノベーション後洗面台
・スペースの関係で通常よりも浅いタイプの洗面です。
・サイドにオーダー家具の収納を取り付けています。
リノベーション後リビング
・スペースはそこまで広くないですがソファーなどを置いても大丈夫な寸法で作成しています。
・引戸は大容量WICのドアです。
リノベーション後フローリング
・ワックスや後付けの施工では出せない鏡面フローリングです。
・一般のフローリングより割高ですがインパクト十分です。
スケルトンから全てを変更して作成しました。
濃淡のハッキリしたモダンな作りで高級感が出ています。
弊社は普通の不動産会社とは違い売買仲介、住宅ローン、リフォームローン、リノベーションプランニング、施工、様々な業務をワンストップでこなせます。
「興味はあるけど面倒くさそう」「どうすれば良いか分からない」などお困りごとがあればお気軽にご相談下さい♪